A Family-Friendly
Community by Cook
Bros. Homes

Where Quality Homes Meet Everyday Family Living

Starting in Mid $400,000s+

Welcome to Mill Branch Ridge, a brand-new community by Cook Bros. Homes, one of Knoxville's most trusted new home builders. Designed with families in mind, Mill Branch Ridge offers timeless homes, modern comfort, and the space your family needs to grow—all in a location that keeps you close to schools, shopping, and everyday conveniences.

Call Now to Secure Your Homesite
Cook Bros Home

Experience Our Craftsmanship

The Traditions Floor Plans

Built for How Families Really Live

The Tradition Collection combines timeless curb appeal with open, family-friendly layouts and durable finishes—creating a home that's as beautiful as it is easy to live in. Every floorplan in our Tradition Collection is thoughtfully designed to bring people together, blending comfort with connection through open-concept living areas, beautifully appointed designer kitchens. This isn't just a family home — this is where life happens.

Highlights families love:

  • Open-concept kitchens and gathering spaces
  • 9' ceilings on the main level for a bright, airy feel
  • Luxury Vinyl Plank flooring in high-traffic areas
  • Flexible spaces for playrooms, home offices, or guest rooms
  • Energy-efficient construction for year-round comfort
House Exterior
Kitchen Exterior

👉 Schedule a visit to one of our model homes today and experience our craftsmanship firsthand.

Kitchens Made For Family Time

The kitchen is the heart of every Traditions home — perfect for busy mornings, homework at the island, and family dinners.

  • Granite countertops with eased edge
  • Soft-close cabinets with roll-out trash storage
  • Spacious islands designed for cooking, gathering, & everyday moments
  • GE® stainless steel appliance package
  • Deep under-mount sink with pull-down faucet
  • Wide selection of textures, finishes and colors for personalization
Traditions Kitchen
Traditions-floor-plan-Kitchen-Mill-Branch-Ridge

Comfortable Owner's Suites

Enjoy a Sanctuary Where You Can Unwind

Retreat to an Owner's Suite designed for relaxation after a long day.

  • One-piece fiberglass shower with chrome hardware
  • Granite vanity tops with under-mount sinks
  • Thoughtful lighting and chrome fixtures

A luxury owner's suite is your private retreat—a place to unwind, recharge, and escape the pace of everyday life. In a new home, it sets the tone for comfort and calm, giving you a space that feels indulgent, personal, and truly yours.

Bathroom
bedroom-MBR

Be among the first to call Mill Branch Ridge home! Join our VIP Early Access list below and get notified the moment sales open—don’t miss your chance.

Contact Us

Built For Comfort, Safety & Efficiency

These features help keep your family comfortable, connected, and protected - now and for years to come.

  • Energy Star® windows and radiant barrier roof decking
  • Lennox® high-efficiency HVAC systems
  • Rinnai® tankless gas water heater
  • Smart Home system with security features
  • Passive radon venting and modern safety systems
  • Quality craftsmanship that is built to last
family-MBR
Traditions-study

Personalize Your Home

Where Quality Homes Meet Everyday Family Living

Bring your style to life with selections through the Cook Bros. Homes Design Studio, including flooring, cabinetry, countertops, and exterior finishes.

👉 Ask about design options and current availability

Learn About Our Design Studio
Design Studio

Why Families Choose Cook Bros. Homes

We Build Homes Where Life Happens

For decades, Cook Bros. Homes has built a reputation as one of the best new home builders in Knoxville, TN. Families trust Cook Bros. for quality construction, thoughtful layouts, and a guided building process that makes buying a new home feel simple and stress-free.

family-lounge
outdoor-MBR

Make Mill Branch Ridge Home

Your family deserves a home built with care, comfort, and lasting value.

👉 Schedule Your Private Tour

👉 View Available Homes & Floor Plans

👉 Contact Our Team to Get Started

Premium Homesites are now available—don't miss your opportunity to join this exciting new community.

Your family deserves a home built with care, comfort, and lasting value. The Tradition Collection blends cozy, connected living with refined design, featuring spacious open layouts, chef-inspired kitchens, and luxurious finishes throughout. Discover timeless charm, exceptional quality, and versatile floor plans built to grow with your family through every season.

Aerial View
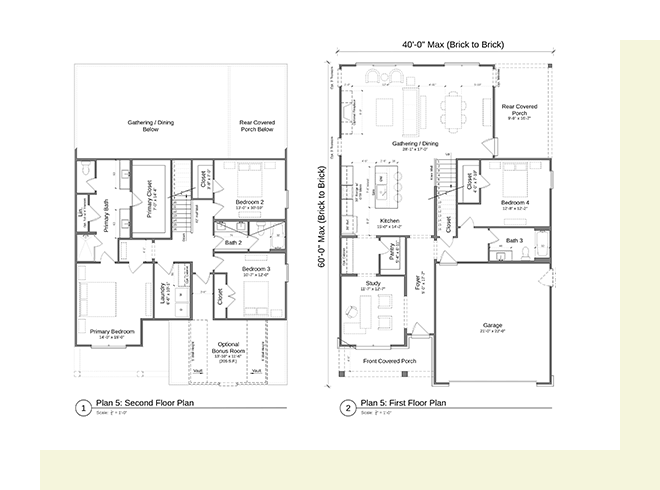
Floor Plan

👉 Why Not Schedule a Visit to One of Our Model Homes Today & Experience Our Craftsmanship First Hand?

Here to Make the Home Buying Process EASY!

Family operated, locally owned. We truly enjoy making your home buying experience seamless from start to end.

John Cook

John Cook

Founder/Owner

Whether it's your first new home, next new home, or last new home, we 100% guarantee quality craftmanship with a Cook Bros. Home.

Ralph Cook

Ralph Cook

Founder/Owner

Building beautiful designs with structural integrity so you can build memories with peace of mind.

Cook Bros. Homes Blog

Your go-to resource for insights, inspiration, and updates on homebuilding in Knoxville.

Whether you're embarking on your first home purchase, interested in building on your own lot, exploring our latest collections like the Freedom or Legacy plans, or seeking tips on financing and design, our blog is here to guide you every step of the way.

Visit Our Blog

Interested In Learning More?

Contact Us